1.Ammeter
2.Condensation controller
3.Aparato sa proteksyon ng microcomputer
6 .Barometer
7.Siningil na display
8.. Fault indicator
9. Electric operating mechanism
10. Manu-manong mekanismo ng pagpapatakbo
11. Electromagnetic lock
12~13 . Kasalukuyang transpormer
14.Cable plug
15.Voltage transpormer
16. Aluminum haluang metal heating plate
Ang KXRM6-12 Combined Type GIS Cabinet ay angkop para sa mataas at mababang temperatura (+40℃~-40℃), kahalumigmigan, alikabok, polusyon sa asin, mga minahan, mataas na altitude (1000m) at iba pang kapaligiran. Ang panandaliang paglulubog sa tubig sa loob ng 24 na oras ay hindi makakaapekto sa paggamit. Tandaan: Kung mas mataas ang altitude, pakisaad ang partikular na altitude.
KXRM6-12 Combined Type GIS Cabinet ay nakakatugon sa mga pamantayan sa ibaba
IEC60056, IEC60298, IEC60129, IEC60420, IEC60265, IEC60694 atbp...
GB3804, GB3906, GB11022 atbp...
◆ Ang SF6 gas sa KXRM 6-12 Combined Type GIS Cabinet ay ginagamit bilang arc extinguishing at insulating medium.
◆ Ang switch cabinet ay ganap na selyado at insulated; Ang mga busbar, switch at live na bahagi ay ganap na nakapaloob sa hindi kinakalawang na bakal na shell.
◆ Ang cavity ay puno ng 1.4bar SF6 gas, at ang antas ng proteksyon ay umabot sa IP67: ang buong switch device ay ganap na hindi naaapektuhan ng mga panlabas na kondisyon sa kapaligiran, na maaaring matiyak ang normal na operasyon ng switch kahit na sa matinding mga kaso tulad ng panandaliang water immersion, at ang produkto ay walang maintenance.
◆ Ang switch cabinet ay may perpektong "five-prevention" na interlocking device, na ganap na nag-aalis ng operation failure ng mga tauhan at kagamitan na maaaring sanhi ng maling operasyon ng tao.
◆ Ang lahat ng switch cabinet ay may maaasahang ligtas na pressure relief channel, na maaaring matiyak ang personal na kaligtasan ng mga operator kahit na sa matinding mga kaso.
◆ Ang cabinet ay nahahati sa fixed unit combination at expandable unit combination.
◆ Cabinet kadalasang pumapasok at lumalabas mula sa harapan, at maaari rin itong pahabain o pahabain mula sa gilid ayon sa iba't ibang posisyon sa pag-install.
◆ Ang sukat ng cabinet ay maginhawang i-install, at maaari itong maging angkop para sa mga lugar na may makitid na espasyo at hindi magandang kondisyon sa kapaligiran.
◆ Cabinet ay maaaring nilagyan ng electric, remote control at monitoring device ayon sa iba't ibang pangangailangan ng mga user.
|
item |
Yunit |
C Module |
F Module |
V Module |
CB Module |
||
|
|
I-load ang switch |
pinagsama-sama |
Vacuum switch |
Ihiwalay ang Switch/Ground switch |
VCB |
Ihiwalay ang Switch/Ground switch |
|
|
Na-rate na boltahe |
KV |
12/24 |
12/24 |
12/24 |
12/24 |
12/24 |
12/24 |
|
Ang dalas ng pagtatrabaho ay lumalaban sa boltahe |
KV |
42/50 |
42/50 |
42/50 |
42/50 |
42/50 |
42/50 |
|
Ang salpok ng kidlat ay lumalaban sa boltahe |
KV |
95/125 |
95/125 |
95/125 |
95/125 |
95/125 |
95/125 |
|
Na-rate ang kasalukuyang |
A |
630/630 |
TANDAAN1 |
630/630 |
|
1250/630 |
|
|
Nakakasira ng agos |
A |
630/630 |
|
|
|
|
|
|
Cable breaking kasalukuyang |
A |
135/135 |
|
|
|
|
|
|
5% Load breaking current |
A |
31.5/- |
|
|
|
|
|
|
Grounding fault breaking current |
A |
200/100 |
|
|
|
|
|
|
Grounding fault cable charging breaking current |
A |
115/87 |
|
|
|
|
|
|
Short-circuit breaking current |
KA |
|
TANDAAN2 |
20/16 |
|
25/20 |
|
|
kakayahan sa pagsasara |
KA |
63/52.5 |
TANDAAN2 |
50/40 |
50/40 |
63/50 |
63/50 |
|
Panandaliang makatiis sa kasalukuyang (2s) |
KA |
25/- |
|
|
|
|
|
|
Panandaliang makatiis sa kasalukuyang (3s) |
KA |
-/21 |
|
20/16 |
20/16 |
25/20 |
25/20 |
|
Buhay na mekanikal |
Oras |
5000 |
3000 |
5000 |
2000 |
5000 |
5000 |
TANDAAN1:Depende sa rate na kasalukuyang ng fuse
TANDAAN2:Depende sa high voltage fuse
▶D cabinet configuration Tingnan ang "Cable Connection Module na walang Grounding Knife" para sa karaniwang configuration at mga katangian.
▶Configuration ng C cabinet Tingnan ang "Load Switch Module" para sa karaniwang configuration at mga katangian.
▶F cabinet configuration Tingnan ang "Vacuum Switch Module" para sa karaniwang configuration at mga katangian.
Ang KX-RM6 Combined Type GIS Cabinet karaniwang kumbinasyon ay maaari ding magbigay ng mga sumusunod na configuration
▶ Capacitive voltage indicator ng papasok na bushing
▶Ang bawat air chamber ay nilagyan ng pressure gauge para sa pagsubaybay sa density ng SF6.
▶Pag-angat ng lug
▶Hawak ng pagpapatakbo
□ I-load ang switch Module C
○ Karaniwang configuration at mga feature
▶630a busbar
▶Tatlong istasyon ng load/grounding switch
▶Three-station single spring operating mechanism na may dalawang independent load switch at grounding switch operating shafts.
▶Indikasyon ng posisyon ng load switch at grounding switch
▶Pahalang na papalabas na bushing sa harap, 630A 400 series bolt bushing.
▶ Capacitive voltage indicator para sa pagtukoy ng bushing electrification
▶Para sa lahat ng switch function, maginhawang mag-install ng padlock device sa panel.
▶SF6 gas pressure gauge (isa lang sa bawat SF6 gas box)
▶Grounding busbar
▶Pagkakabit sa pagitan ng grounding switch at front panel ng cable room
▶Nakareserbang extension ng bus
▶ Panlabas na bus
▶Load switch electric operating mechanism DC24V/48V/110V/220V; AC 110V/220V;
▶Short circuit at ground fault indicator Pagsukat ng ring current transformer at ammeter
▶Pagsukat ng ring current transformer at watt-hour meter
▶Ang lightning arrester o double cable head ay maaaring i-install sa cable inlet sleeve.
▶Key interlock Papasok na linya live na grounding locking (locking grounding switch kapag live ang bushing) AC/DC 110 V/220 V. pantulong na contact
▶Load switch position 2NO+2NC, grounding switch position 2NO+2NC, pressure gauge 1NO na may signal, at arc extinguisher 1NO na may signal contact.
▶Maaaring i-install ang pangalawang device
▶Secondary line chamber sa tuktok ng switch cabinet, low voltage box sa tuktok ng switch cabinet.
○ Karaniwang configuration at mga feature
▶630a busbar
▶Tatlong istasyon ng load switch, ang unang dulo ng fuse ay mekanikal na naka-link sa grounding switch sa dulo ng fuse.
▶Three-station spring operating mechanism, na may dalawang independent load switch at grounding switch operating shafts.
▶Indikasyon ng posisyon ng load switch at grounding switch
▶Fuse barrel
▶Ang fuse ay inilalagay nang pahalang.
▶Fuse trip indication Pahalang na papalabas na bushing sa harap, 200 series plug-in bushing na 200A.
▶ Capacitive voltage indicator para sa pagtukoy ng bushing electrification
▶Para sa lahat ng switch function, maginhawang mag-install ng padlock device sa panel.
▶SF6 gas pressure gauge (isa lang sa bawat SF6 gas box)
▶Grounding busbar
▶Ang mga parameter ng fuse para sa proteksyon ng transformer ay 12KV, max 125A, 24KV at max 63A.
▶Pagkakabit sa pagitan ng grounding switch at front panel ng cable room.
▶Nakareserbang busbar extension
▶External bus Motor para sa pagpapatakbo ng switch ng load 24V/48V DC 110V/220V DC/AC.
▶Parallel trip coil 24V/48V DC 110V/220V DC/AC.
▶Parallel closing coil 24V/48V DC 110V/220V DC/AC.
▶Pagsukat ng ring current transformer at ammeter Pagsukat ng ring current transformer at watt-hour meter
▶Papasok na linya live na grounding locking (locking grounding switch kapag bushing ay live) AC/DC 110 V/220 V. pantulong na contact
▶Load closing position 2NO+2NC, grounding switch position 2NO+2NC, fuse blowing 1NO, pressure gauge 1NO na may signal, at arc extinguisher 1NO na may signal contact.
▶Maaaring i-install ang pangalawang device sa pangalawang line chamber sa tuktok ng switch cabinet at ang low voltage box sa tuktok ng switch cabinet.
□ Meter Module M
○ Karaniwang configuration at mga feature
▶12KV metering cabinet
▶2 kasalukuyang mga transformer
▶2 transformer ng boltahe
▶6pcs 400-series bushings ay ginagamit para ikonekta ang flexible extended external bus ng GSFR6-12, kasama ang upper inlet at lower outlet.
▶Flame breaker para sa pagprotekta sa PT
▶Mababang pressure component 1 voltmeter na may changeover switch, 1 ammeter na may changeover switch, lapad x taas x lalim =696×1806×820mm.
○ Mga opsyonal na configuration at feature
▶3 kasalukuyang mga transformer
▶3 mga transformer ng boltahe na tagapag-aresto ng kidlat
▶Capacitive voltage indicator para ipahiwatig na naka-charge ang switchgear
▶Mababang pressure component :1 power meter, 1 reactive power meter.
□ VCB Module CB
○Karaniwan at Opsyonal na configuration at mga feature
▶Nakabit ang lightning arrester sa papasok na cable ng 1250a/630a busbar.
▶Vacuum circuit breaker para sa proteksyon ng linya na 1250a/630a
▶Kasalukuyang transpormer
▶Vacuum circuit breaker VD4X0 electrically operated 10VDC
▶ Transpormer ng boltahe
▶Electric operation ng UXO, isang upper three-station isolating/grounding switch ng vacuum circuit breaker. ▶Proteksyon at control unit REF542plus (na may protective CT)
▶Shunt trip coil 110V/220V DC
▶Closing coil 110V/220VDC
▶400-series bolt bushing ng outlet bushing 1250A/630A na nakaayos nang pahalang sa harap.
▶Nakareserbang Bus Extension ng Capacitive Voltage Indicator 1250A/630A para sa Pagpapahiwatig ng Bushing Live
▶SF6 gas pressure gauge (isa lang sa bawat SF6 gas box) Lapad x taas x lalim = 696× 1806× 781 mm. ▶On-off na pagkakasunud-sunod: O-0.3s-CO-180s-CO.
▶ Sensor ng presyon ng gas
1. Mga pantulong na contact Ang lahat ng load switch at circuit breaker ay maaaring nilagyan ng 2NO+2NC na nagpapahiwatig ng posisyon ng switch. Ang isang parallel trip coil (AC o DC) ay maaaring mai-install sa switch ng transpormer at circuit breaker, at ang bahagi ng kontrol na may mababang boltahe ay matatagpuan sa likod ng front panel.
2. Indikasyon ng boltahe Ipinapakita ng capacitive voltage indicator kung naka-charge o hindi ang bushing, at magagamit ang socket dito para sa nuclear phase.
3. Short circuit at ground fault indicator Upang mapadali ang lokasyon ng fault, ang cable switch module ay maaaring nilagyan ng short circuit at grounding fault indicator para sa simpleng pagtukoy ng fault.
4. Pagpapatakbo ng kuryente Ito ay isang karaniwang scheme para sa manu-manong mekanismo ng pagpapatakbo ng cable switch unit at transformer unit. Maaari mo ring piliing mag-install ng electric operating mechanism. Ang mga cable switch, vacuum circuit breaker at grounding switch ay pinapatakbo lahat ng mga mekanismong matatagpuan sa likod ng front panel. Ang lahat ng switch at circuit breaker ay maaaring patakbuhin sa pamamagitan ng operating handle (standard configuration), o maaaring gamitan ng motor operating mechanism (accessories). Gayunpaman, ang switch ng saligan ay maaari lamang patakbuhin nang manu-mano, at isang mekanismo na may kakayahang isara ang kasalukuyang fault ay na-configure. Ang mekanismo ng pagpapatakbo ng kuryente ay madaling maisasakatuparan sa pamamagitan ng mga yugto.
5. Pagkonekta ng cable Ang mga karaniwang bushing alinsunod sa DIN47636 ay naka-install. Ang lahat ng bushings ay may parehong taas mula sa lupa at protektado ng cable room cover plate. Ang ilang mga cover plate ay maaaring i-interlock sa grounding switch, at ang mga espesyal na double cable room cover plate ay maaari ding gamitin para sa double cable na mga papasok na linya.
6. Pressure indicator Karaniwang nilagyan ng pressure indicator, na binubuo ng pressure gauge. Bilang karagdagan, ang mga de-koryenteng kontak ay maaaring ibigay upang ipahiwatig ang pagbabawas ng presyon.
7. Maaaring i-install ang mga key lock para sa mga circuit breaker, load switch at grounding switch. Maaari itong nilagyan ng lock interlocking semi-shelter, na angkop para sa mga circuit breaker, load switch at grounding switch.
8. Arc interrupter Lahat ng ring network unit ay maaaring nilagyan ng mga arc arrester. Kapag naganap ang pag-arce sa loob, awtomatikong magsasara ang mga arc arrester sa papasok na bushing, kasama ang D, DE at V modules, at lahat ng cable module ay maaaring nilagyan ng arc arrestor. Dapat silang mag-order kasama ang unit at hindi ito maaaring baguhin. Ang pagkilos ng arc extinguisher ay maaaring ipahiwatig ng pamamaraang ito, at ang mga electrical contact sa SF6 cabinet ay konektado sa terminal sa likod ng front panel.
◆ Scheme 1 SA+CCF+
Mag-install ng lightning arrester sa bus at iwanan ito para sa pagpapalawak.
Tandaan: Ang bilang ng mga switch unit ay hindi dapat mas mababa sa 3.
◆ Scheme 2 CCF+
Mag-install ng lightning arrester sa papasok na linya at pagpapalawak ng reserba.
◆ Skema 3 W+M+FFF
Pagkalkula ng panig ng HV
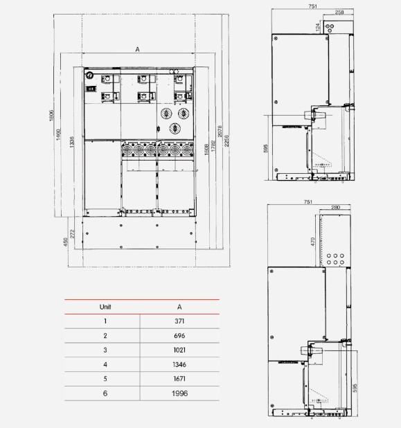
● Mga talahanayan ng istruktura at dimensyon ng KXRM6-12 Combined Type GIS Cabinet



Address
No.228 Weishiqi Road, Yueqing Economic Development Zone, Wenzhou City, Zhejiang Province, China
Tel